The Grendel Gallery
Aim
The Grendel Gallery was a sole project undertaken during my time studying at The Sydney Design School. The project aimed to develop my technical documentation skills through the creation of a fictional gallery. The concept and size of the gallery were provided within the brief, but my creativity was able to flourish through the external and internal gallery design features and layout.
Process
The Grendel Gallery was the first project that gave me an insight into documentation, and it was here that my love for documentation truly blossomed. Over twelve weeks, The Grendel Gallery came to life. This process entailed the following tasks:
Site Modelling
Architectural Modelling
Families and Component Development
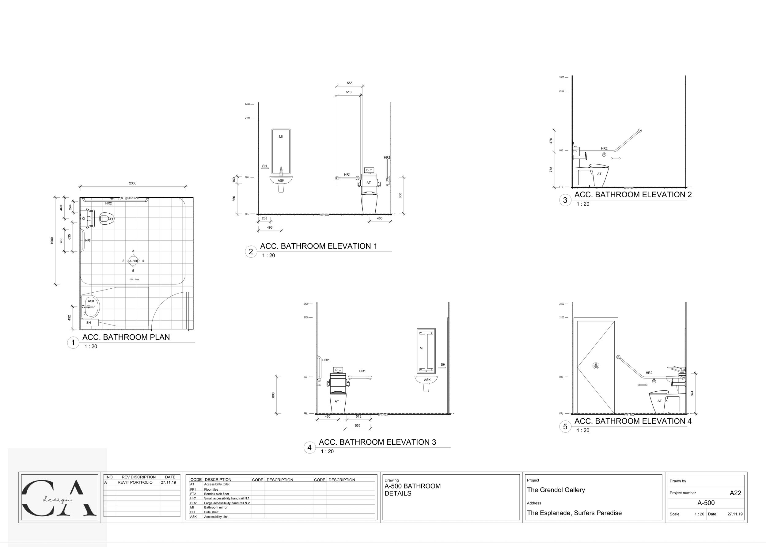
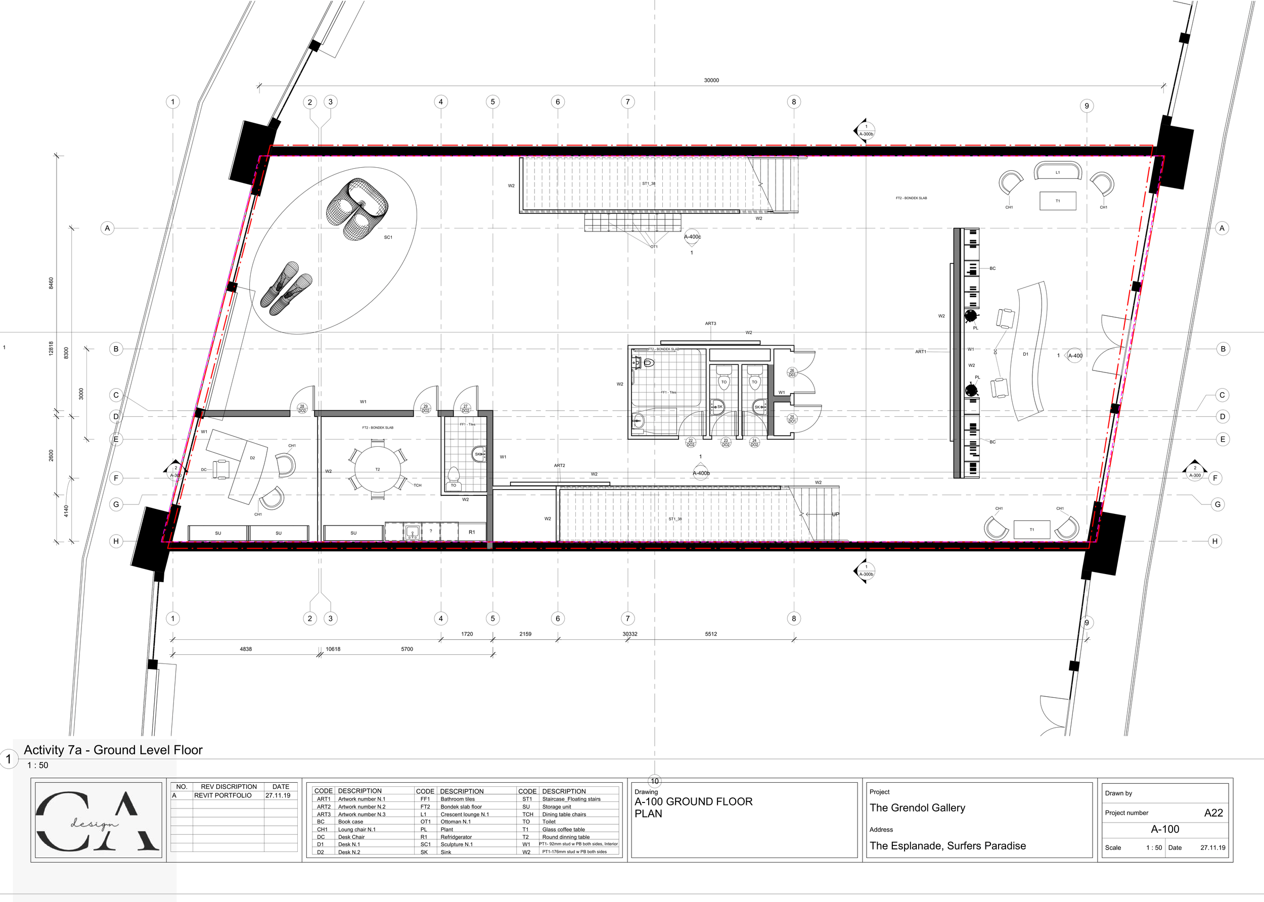
Annotations, Schedules and Sheets
Rendering
Outcome
The Grendel Gallery was an incredibly influential project. Not only did I learn how to correctly document my once conceptual ideas, but I was also able to bring those ideas to life through CAD software. The gallery’s design is not just about creating a visually appealing structure; it’s about crafting an environment that enhances the appreciation of art and fosters community engagement. With the viewer’s experience in mind, I aimed to create a gallery that displays art in an immersive and meaningful manner.
TECHNICAL DOCUMENTATION SAMPLE
